Proyecto

Diseño de las Morgues en las Sedes de Santa Rosa de Copán y Choluteca para la Dirección de Medicina Forense del Ministerio Publico

Contratación de los servicios profesionales para desarrollar una consultoría de arquitectura e ingeniería, que diseñe y coordine los planos y documentos técnicos de diseño, conteniendo la información necesaria y suficiente para la construcción del proyecto.
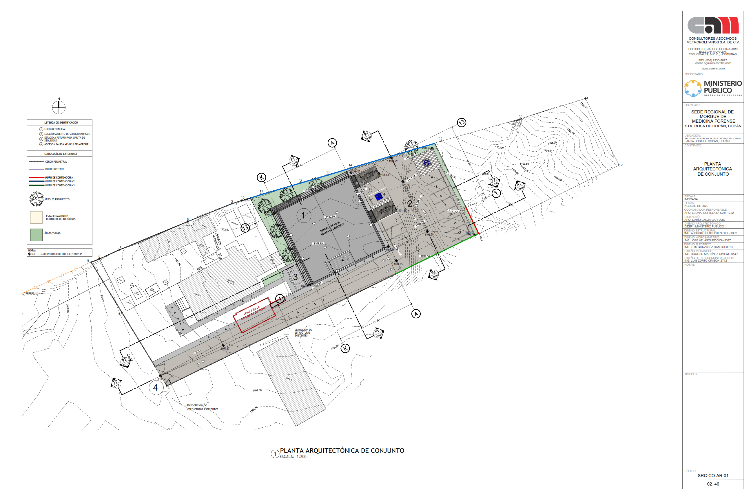
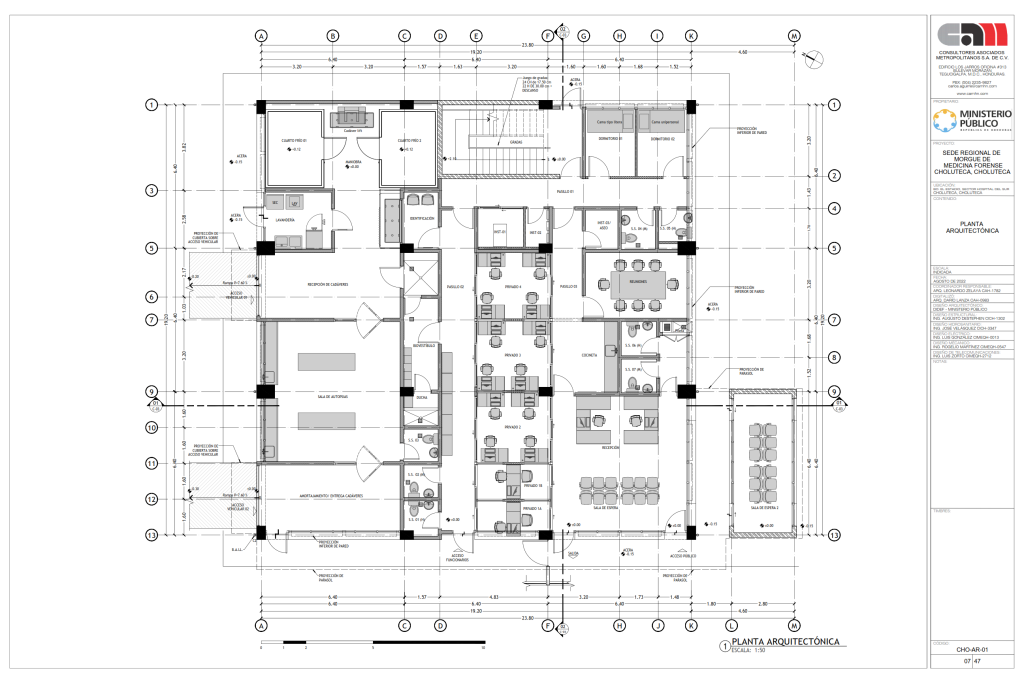
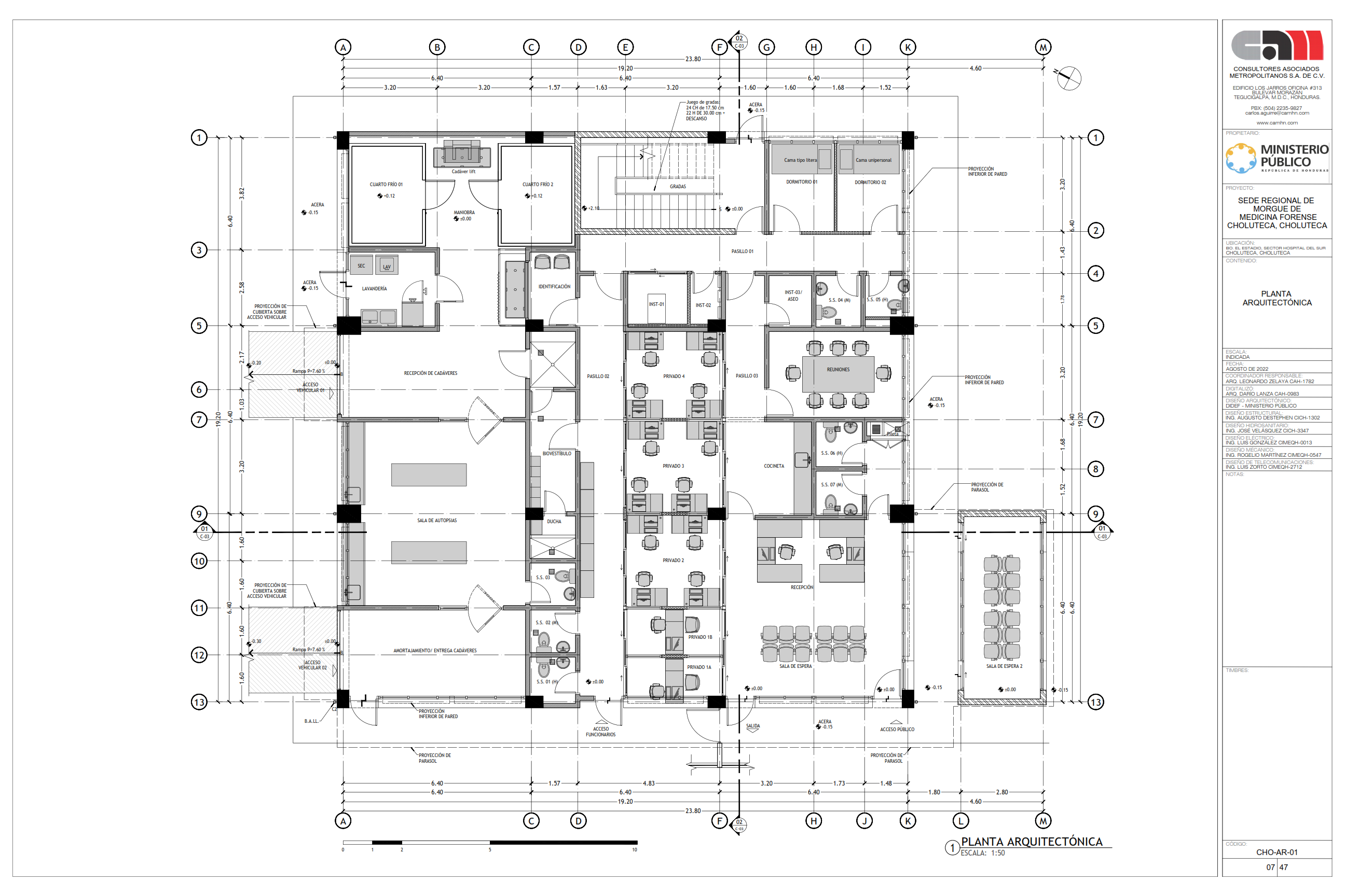
El edificio diseñado es un edificio prototipo de 385 m² de construcción que se adaptó al predio de cada ciudad.
Esta consultoría incluyó el diseño y calculo de todas las especialidades e ingenierías: arquitectura, estructura, sistema hidrosanitario, sistema eléctrico, sistema HVAC y sistemas especiales de voz, datos y sistema de emergencias.
El proyecto de Santa Rosa de Copán se diseñó en un predio de 3488 m² y el de Choluteca en uno de 6299 m².

Periodo de ejecución:

Julio 2022 - Noviembre 2022

Ubicación:

Santa Rosa de Copán y Choluteca

Alcance:

Consultoría de arquitectura e ingeniería

CONSULTORES ASOCIADOS
METROPOLITANOS S.A DE C.V.

Te invitamos a explorar el catálogo completo de CONSULTORES ASOCIADOS METROPOLITANOS S.A. DE C.V., donde encontrarás toda la información sobre nuestra experiencia, proyectos destacados y servicios

Descubre cómo transformamos ideas en espacios funcionales y estéticos, respaldados por +30 años de experiencia y un equipo de expertos comprometidos con la excelencia.

Ver PDF

Consultores Asociados Metropolitanos, S.A. de C.V. (CAM) es una firma dedicada a la planificación, diseño y supervisión de proyectos de arquitectura, ingeniería y desarrollo urbano, ofreciendo soluciones innovadoras para el sector público y privado.
© 2026 CONSULTORES ASOCIADOS METROPOLITANOS S.A DE C.V.
Diseño y desarrollo web por webs.hn
envelopeinboxphone-handsetmap-markercalendar-fullmenucheckmark-circlechevron-left-circle