Proyecto

Edificio de la Representación del Banco Interamiericano de Desarrollo (BID) en Honduras

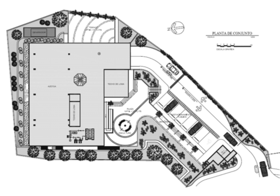
El edificio está desarrollado en 4 niveles, con 2,800 m² de construcción, con capacidad para 60 funcionarios y 60 visitantes en un Salón de Usos Múltiples, con 32 estacionamientos bajo techo y 27 al exterior. El diseño cumple con las mismas normas aplicadas a la construcción de edificios en los Estados Unidos de América, con estándares de muy alta calidad en cuanto a capacidad estructural, acabados, instalaciones electromecánicas, dispositivos de seguridad, autosuficiencia energética, aprovechamiento de los espacios internos y externos y paisajismo. Cuenta con sofisticada tecnología para el manejo de comunicaciones electrónicas, nacionales e internacionales.

Periodo de ejecución:

2002-2007

Ubicación:

Urbanización Altos de Las Lomas, Tegucigalpa MDC, Honduras

Alcance:

Diseño Arquitectónico, Desarrollo de Planos Constructivos y Supervisión

CONSULTORES ASOCIADOS
METROPOLITANOS S.A DE C.V.

Te invitamos a explorar el catálogo completo de CONSULTORES ASOCIADOS METROPOLITANOS S.A. DE C.V., donde encontrarás toda la información sobre nuestra experiencia, proyectos destacados y servicios

Descubre cómo transformamos ideas en espacios funcionales y estéticos, respaldados por +30 años de experiencia y un equipo de expertos comprometidos con la excelencia.

Ver PDF

Consultores Asociados Metropolitanos, S.A. de C.V. (CAM) es una firma dedicada a la planificación, diseño y supervisión de proyectos de arquitectura, ingeniería y desarrollo urbano, ofreciendo soluciones innovadoras para el sector público y privado.
© 2026 CONSULTORES ASOCIADOS METROPOLITANOS S.A DE C.V.
Diseño y desarrollo web por webs.hn
envelopeinboxphone-handsetmap-markercalendar-fullmenucheckmark-circlechevron-left-circle