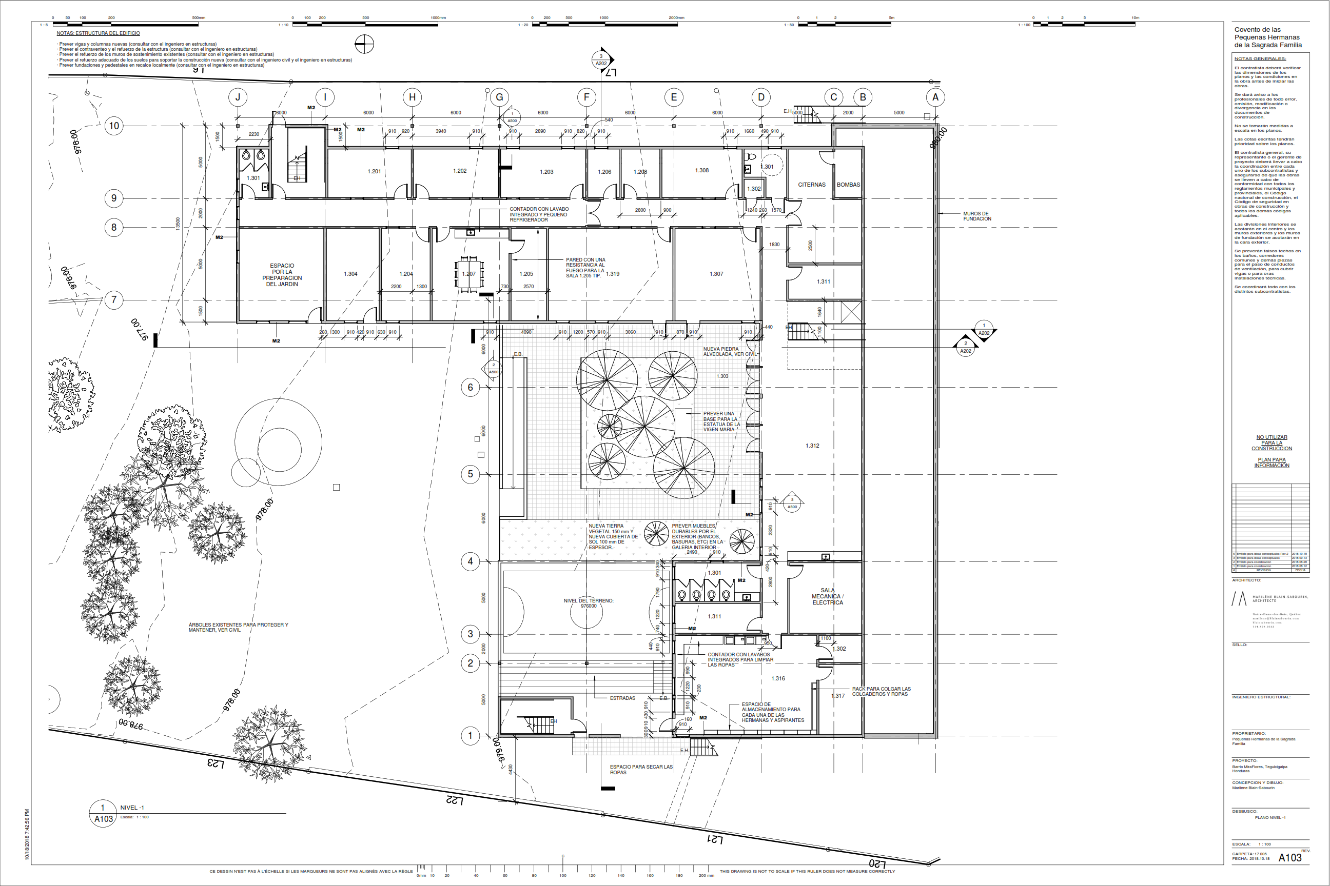
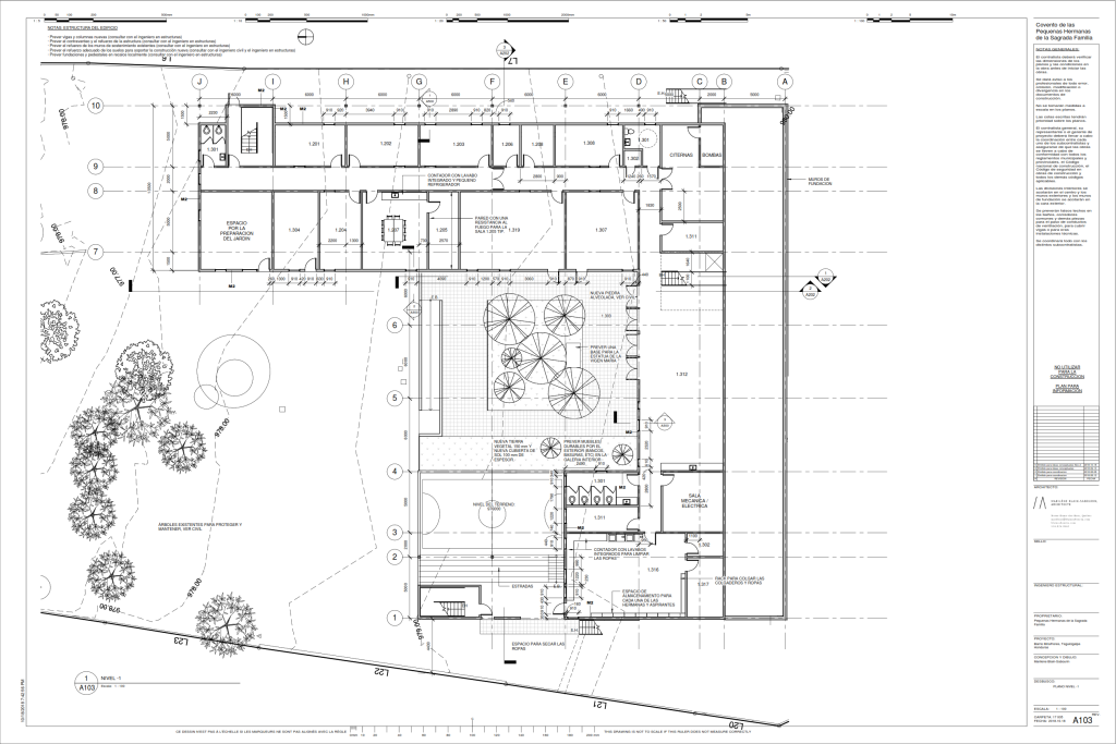
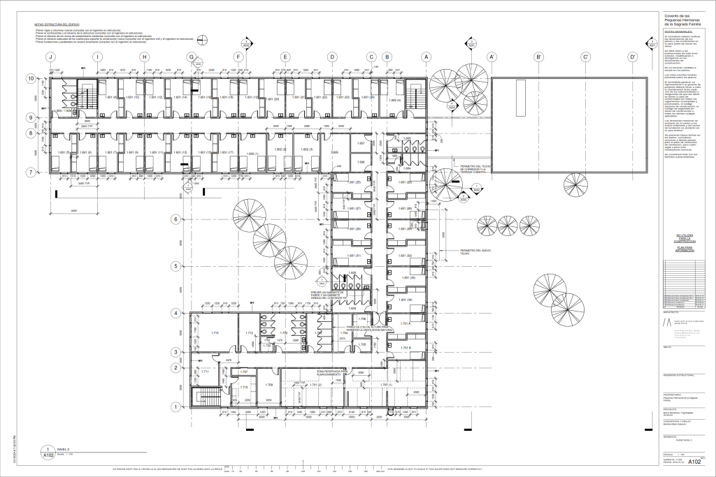
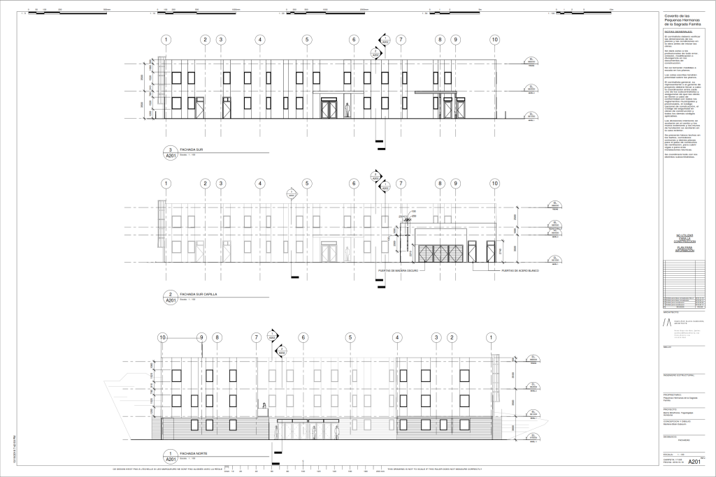
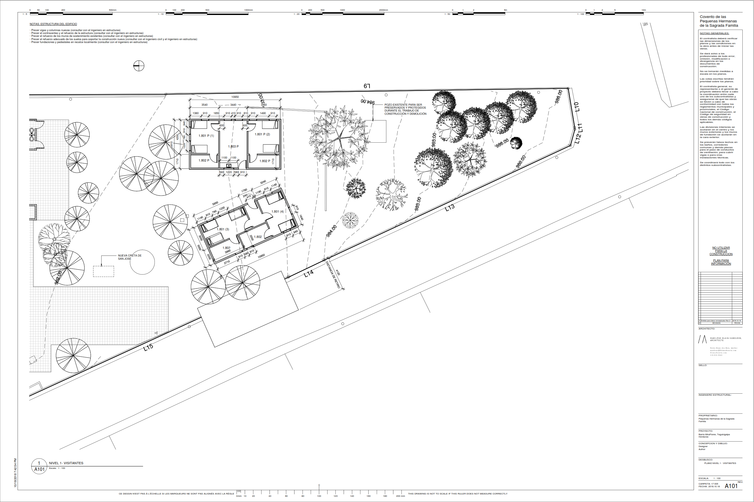
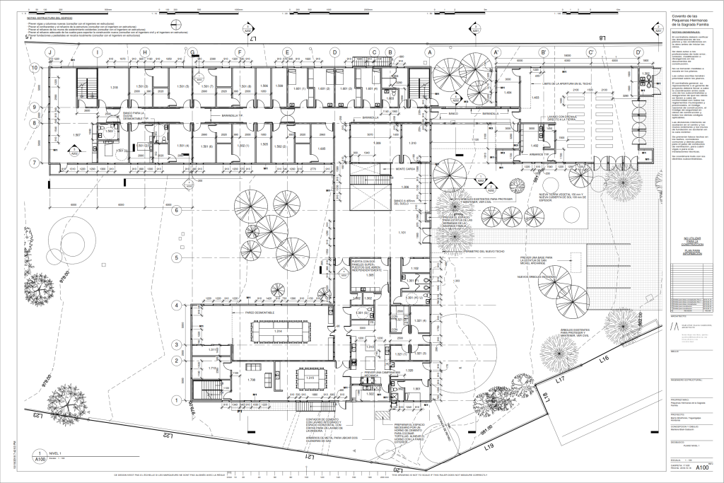
Proyecto

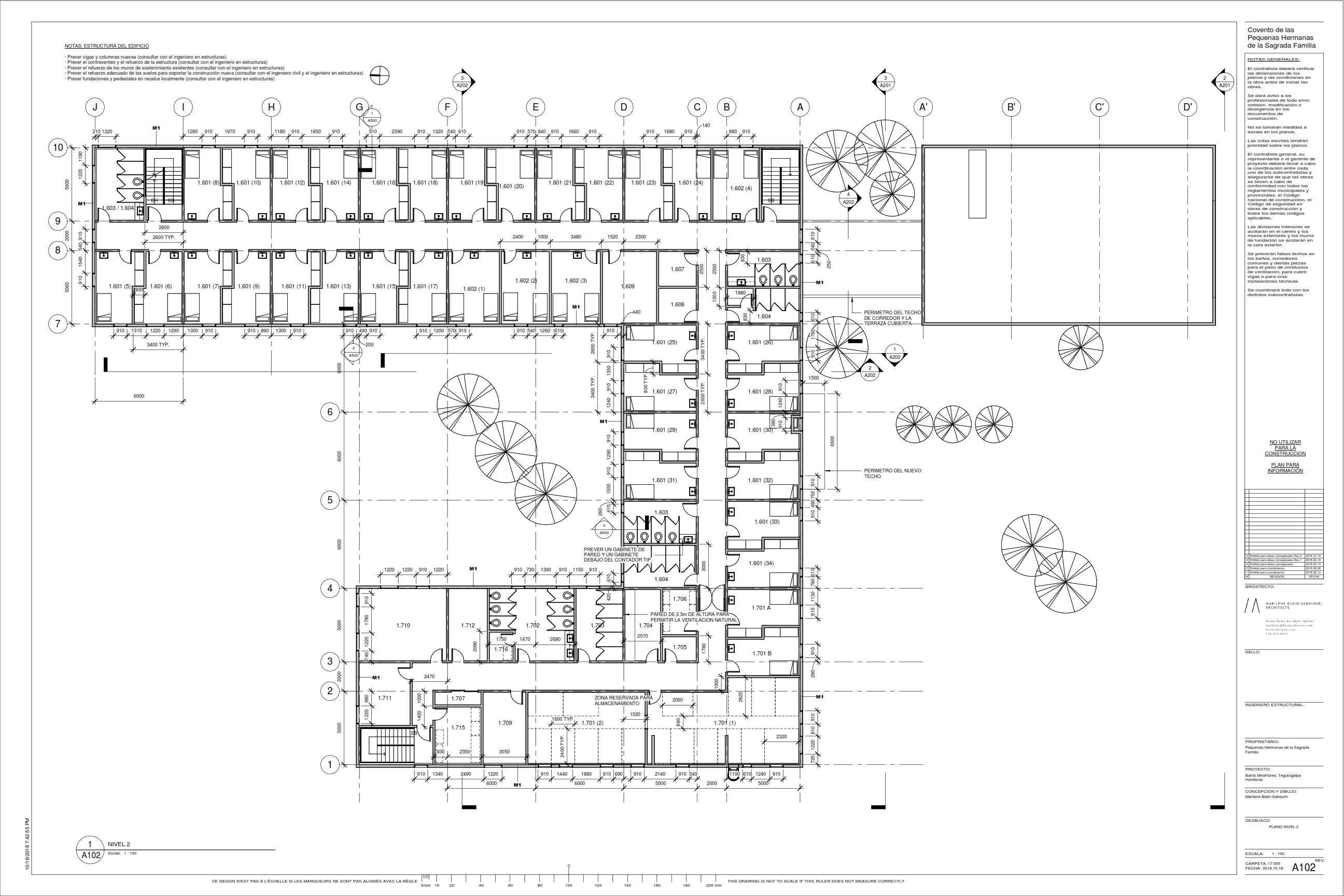
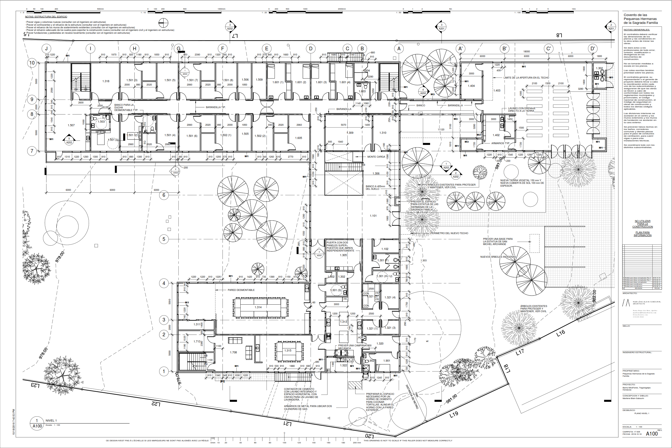
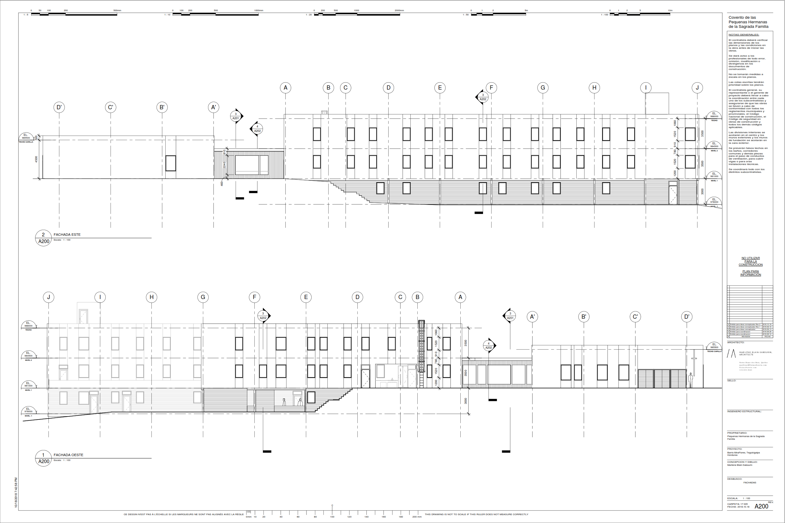
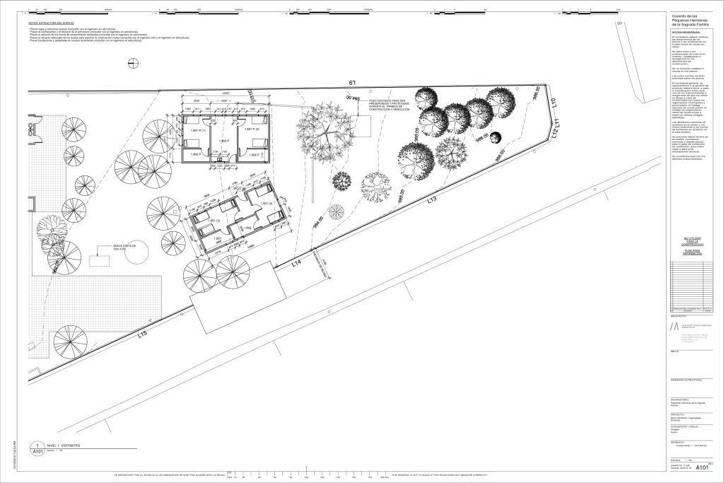
Residencia Principal de Las Pequeñas Hermanas de la Sagrada Familia

-Diseño de planos y memorias constructivas del sistema estructural, sistema hidrosanitario, sistema contra incendio a base de aspersores, sistema eléctrico e instalaciones especiales.
- Diseño de obras complementarias, presupuesto base y especificaciones técnicas.

Periodo de ejecución:

Septiembre 2019 - Enero 2020

Ubicación:

Col. Miraflores, Tegucigalpa, M.D. C

Alcance:

Desarrollo de Planos Constructivos, Presupuesto Base y Especificaciones Técnicas

CONSULTORES ASOCIADOS
METROPOLITANOS S.A DE C.V.

Te invitamos a explorar el catálogo completo de CONSULTORES ASOCIADOS METROPOLITANOS S.A. DE C.V., donde encontrarás toda la información sobre nuestra experiencia, proyectos destacados y servicios

Descubre cómo transformamos ideas en espacios funcionales y estéticos, respaldados por +30 años de experiencia y un equipo de expertos comprometidos con la excelencia.

Ver PDF

Consultores Asociados Metropolitanos, S.A. de C.V. (CAM) es una firma dedicada a la planificación, diseño y supervisión de proyectos de arquitectura, ingeniería y desarrollo urbano, ofreciendo soluciones innovadoras para el sector público y privado.
© 2026 CONSULTORES ASOCIADOS METROPOLITANOS S.A DE C.V.
Diseño y desarrollo web por webs.hn
envelopeinboxphone-handsetmap-markercalendar-fullmenucheckmark-circlechevron-left-circle