Proyecto

Torres de Apartamento D25

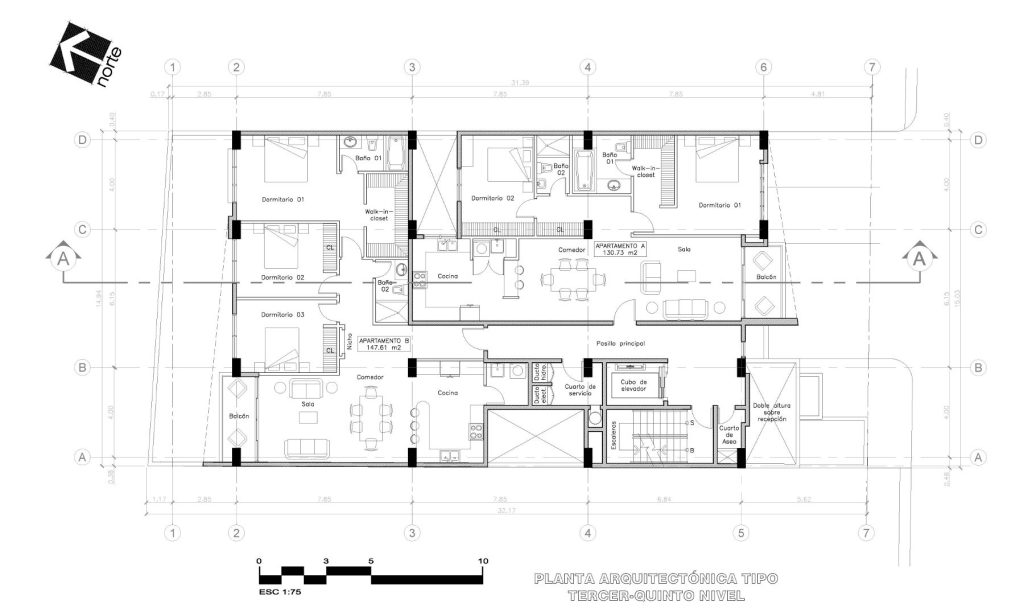
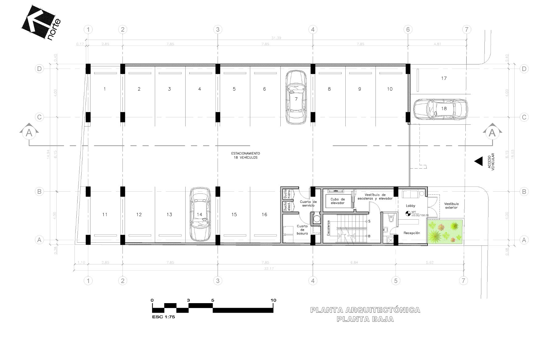
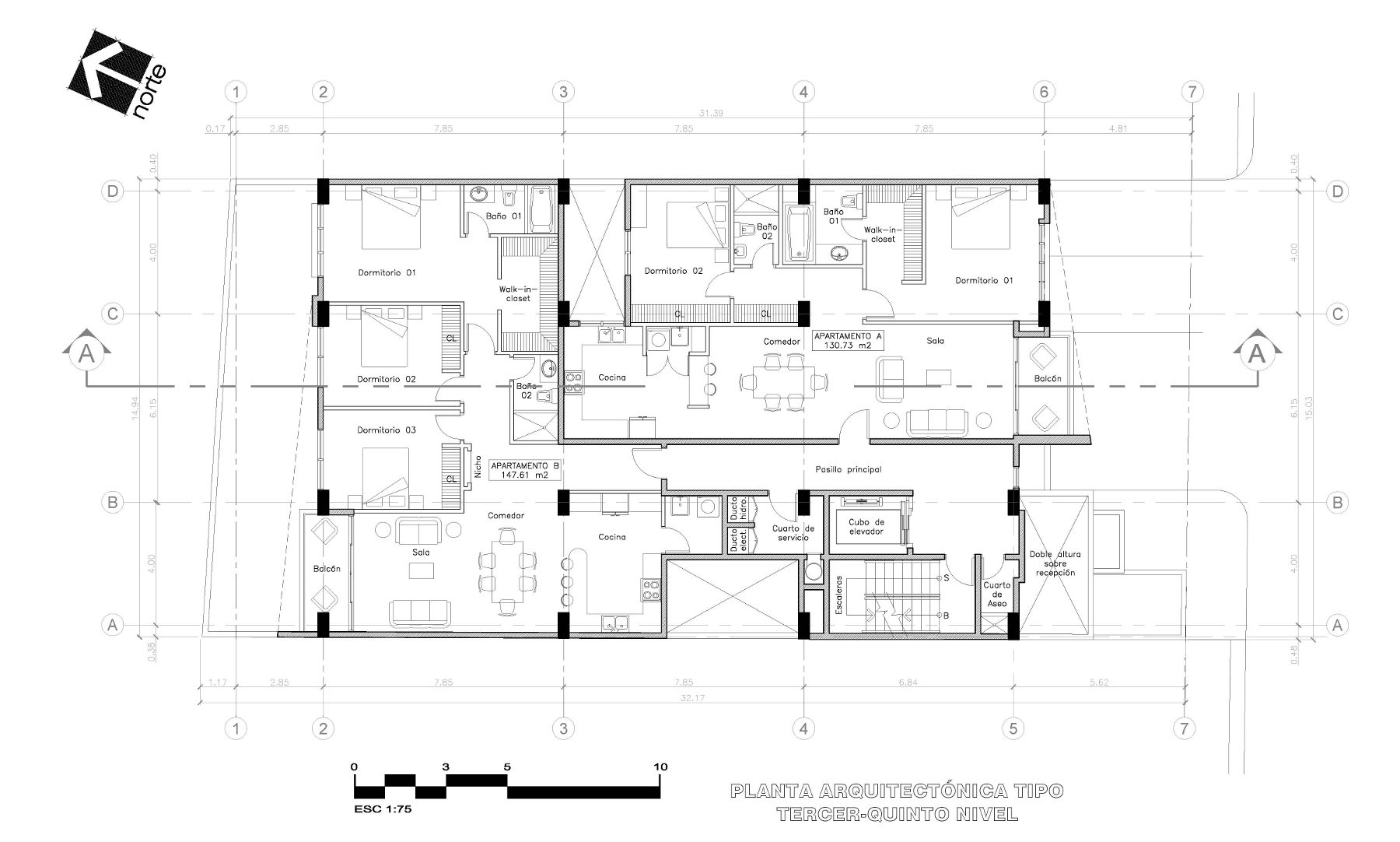
Apartamentos diseñados para un concurso promovido por VIVIENDAS S.A en el año 2014. Se propuso un edificio de apartamentos desarrollado en 6 niveles, de los cuales 4 están destinados para alojar 8 apartamentos, dos por nivel, de entre 130m² a 145m² cada uno. En el nivel de calle se encuentra el estacionamiento, proyectado para 18 vehículos. En el nivel superior se encuentran las áreas comunes de recreación y esparcimiento. El diseño busca una volumetría limpia y vanguardista, que llame la atención por sus líneas simples y que aporte al contexto de una zona residencial exclusiva en la ciudad capital.

Periodo de ejecución:

2014

Ubicación:

Residencial La Cumbre, Tegucigalpa MDC, Honduras

Alcance:

Concurso de Diseño Arquitectónico

CONSULTORES ASOCIADOS
METROPOLITANOS S.A DE C.V.

Te invitamos a explorar el catálogo completo de CONSULTORES ASOCIADOS METROPOLITANOS S.A. DE C.V., donde encontrarás toda la información sobre nuestra experiencia, proyectos destacados y servicios

Descubre cómo transformamos ideas en espacios funcionales y estéticos, respaldados por +30 años de experiencia y un equipo de expertos comprometidos con la excelencia.

Ver PDF

Consultores Asociados Metropolitanos, S.A. de C.V. (CAM) es una firma dedicada a la planificación, diseño y supervisión de proyectos de arquitectura, ingeniería y desarrollo urbano, ofreciendo soluciones innovadoras para el sector público y privado.
© 2026 CONSULTORES ASOCIADOS METROPOLITANOS S.A DE C.V.
Diseño y desarrollo web por webs.hn
envelopeinboxphone-handsetmap-markercalendar-fullmenucheckmark-circlechevron-left-circle