Proyecto

Torres de Apartamento La Franja

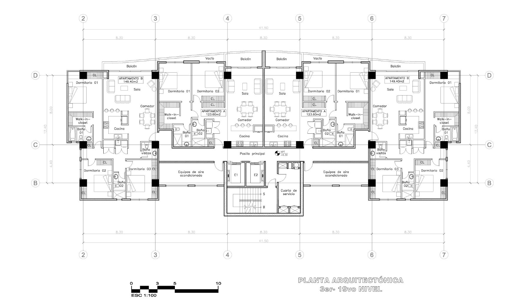
Complejo de Apartamentos diseñados para un concurso promovido por VIVIENDAS S.A en el año 2014. Se diseñaron dos torres gemelas de 26 pisos de altura cada una, unidas en la base por un volumen que contiene las áreas de esparcimiento y los estacionamientos. Las torres de apartamentos están proyectadas para alojar 72 apartamentos cada una; Los apartamentos son de 3 habitaciones y van desde los 125 m² hasta los 240 m² de construcción. Se diseñaron además 4 pisos de estacionamientos para albergar 329 vehículos para visitantes y residentes. La arquitectura está orientada a enfatizar y aprovechar la vista privilegiada que el terreno posee sobre Tegucigalpa. Todos los espacios sociales y privados de los apartamentos tienen amplios ventanales y balcones, aprovechando de esta manera el paisaje de la ciudad capital.

Periodo de ejecución:

2014

Ubicación:

Residencial La Cumbre, Tegucigalpa MDC, Honduras

Alcance:

Concurso de Diseño Arquitectónico

CONSULTORES ASOCIADOS
METROPOLITANOS S.A DE C.V.

Te invitamos a explorar el catálogo completo de CONSULTORES ASOCIADOS METROPOLITANOS S.A. DE C.V., donde encontrarás toda la información sobre nuestra experiencia, proyectos destacados y servicios

Descubre cómo transformamos ideas en espacios funcionales y estéticos, respaldados por +30 años de experiencia y un equipo de expertos comprometidos con la excelencia.

Ver PDF

Consultores Asociados Metropolitanos, S.A. de C.V. (CAM) es una firma dedicada a la planificación, diseño y supervisión de proyectos de arquitectura, ingeniería y desarrollo urbano, ofreciendo soluciones innovadoras para el sector público y privado.
© 2026 CONSULTORES ASOCIADOS METROPOLITANOS S.A DE C.V.
Diseño y desarrollo web por webs.hn
envelopeinboxphone-handsetmap-markercalendar-fullmenucheckmark-circlechevron-left-circle